Продажа таунхауса в коттеджном поселке Европа-3. Английский квартал по Ильинскому шоссе, лот № 59544

Коттеджный поселок Европа-3. Английский квартал О поселке
Ильинское шоссе, 22 км, Дмитровское
Площадь дома 340 м2
Площадь участка 5 соток
Спален 5 спален
Отделка Под ключ
Цена от собственника
Стоимость продажи 60`000`000 руб.$ 845`600€ 731`865
Хочу посмотреть этот дом
ДОМ
Площадь дома: 340 кв.м
Этажность: 3
Уровней: 3
Фундамент: Монолит
Стены: Кирпич
Перекрытия: Железобетонные
Кровля: Мягкая кровля
Отделка: Под ключ
Мебель: Полностью
Внутри посёлка есть: детские и спортивные площадки, теннисный корт (зимой на нём заливают каток). Семейные выходные будут еще уютней.
Рядом с посёлком развитая инфраструктура: школы, детские сады, дома культуры со множеством кружков и студий, физкультурно-оздоровительный комплекс, поликлиники, больницы, магазины, рестораны, аптеки, бассейны, рынки.
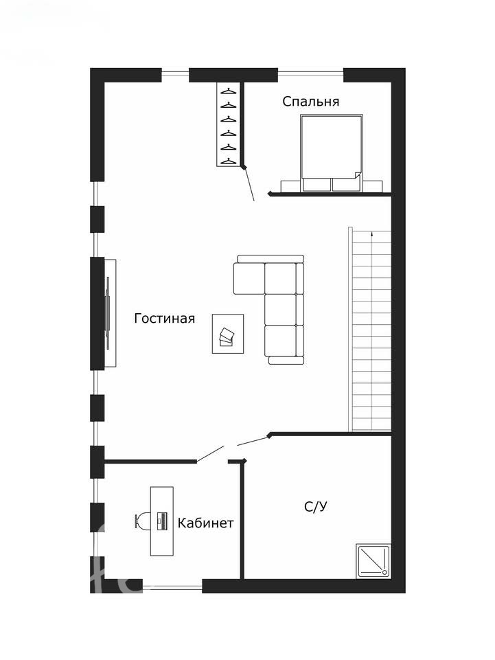
ПЛАНИРОВКА
5 спален (мастер-спальня со своим санузлом, три детские и гостевая); кабинет и лаунж-зона; 4 санузла, включая полноценный на первом этаже; кухня-столовая-гостиная с выходом на закрытую веранду.
УЧАСТОК
Площадь участка: 4.60 сотки
Ландшафт: Газон
Территория ухожена, по периметру участка высажены туи и кустарники, дорожки вымощены плиткой.
Дом расположен на второй линии от леса — тишина и приватность.
КОММУНИКАЦИИ
Газ: Магистральный
Электричество: 10 кВт
Водоснабжение: Центральное
Канализация: Центральная

На карте

Похожие предложения

Лот 7151
Продажа дома Европа-3. Английский квартал 340 м² Ильинское шоссе - Княжье Озеро - 7151
7151
56 800 000 руб.
$ 800 500
€ 692 832
Новорижское шоссе, 23 км
Площадь дома 285 м2
Площадь участка 13 соток
Спален 3 спальни
Отделка Под ключ
Лот 17819
Продажа дома Европа-3. Английский квартал 340 м² Ильинское шоссе - Маленькая Италия - 17819
17819
62 000 000 руб.
$ 873 800
€ 756 261
Новорижское шоссе, 19 км
Площадь дома 345 м2
Площадь участка 5 соток
Спален 3 спальни
Отделка Под ключ
Лот 22345
Продажа дома Европа-3. Английский квартал 340 м² Ильинское шоссе - Горки-2 СТ - 22345
22345
68 000 000 руб.
$ 958 400
€ 829 447
Рублево-Успенское шоссе, 19 км
Площадь дома 300 м2
Площадь участка 10 соток
Спален 4 спальни
Отделка Под ключ
Лот 32852
Продажа дома Европа-3. Английский квартал 340 м² Ильинское шоссе - Новорижский (Покровское) - 32852
32852
70 000 000 руб.
$ 986 500
€ 853 843
Новорижское шоссе, 25 км
Площадь дома 375 м2
Площадь участка 12 соток
Спален 5 спален
Отделка Под ключ
Лот 32855
Продажа дома Европа-3. Английский квартал 340 м² Ильинское шоссе - Новорижский (Покровское) - 32855
32855
69 900 000 руб.
$ 985 100
€ 852 623
Новорижское шоссе, 25 км
Площадь дома 310 м2
Площадь участка 12 соток
Спален 4 спальни
Отделка Под ключ
Лот 42097
Продажа дома Европа-3. Английский квартал 340 м² Ильинское шоссе - Солослово - 42097
42097
74 498 000 руб.
$ 1 050 000
€ 908 714
Солослово
Рублево-Успенское шоссе, 19 км
Площадь дома 350 м2
Площадь участка 20 соток
Спален 4 спальни
Отделка Под ключ
Лот 42869
Продажа дома Европа-3. Английский квартал 340 м² Ильинское шоссе - Кедры - 42869
42869
49 665 000 руб.
$ 700 000
€ 605 809
Новорижское шоссе, 23 км
Площадь дома 420 м2
Площадь участка 19 соток
Спален 4 спальни
Отделка Под ключ
Лот 42947
Продажа дома Европа-3. Английский квартал 340 м² Ильинское шоссе - Горки-2 СТ - 42947
42947
59 500 000 руб.
$ 838 600
€ 725 766
Рублево-Успенское шоссе, 19 км
Площадь дома 312 м2
Площадь участка 12 соток
Спален 3 спальни
Отделка Под ключ
Лот 55391
Продажа дома Европа-3. Английский квартал 340 м² Ильинское шоссе - Пансионат Сосны УПДП - 55391
55391
75 000 000 руб.
$ 1 057 000
€ 914 832
Рублево-Успенское шоссе, 24 км
Площадь дома 180 м2
Площадь участка 0 соток
Спален 3 спальни
Отделка Под ключ
Лот 57534
Продажа дома Европа-3. Английский квартал 340 м² Ильинское шоссе - Чигасово - 57534
57534
74 800 000 руб.
$ 1 054 200
€ 912 392
Рублево-Успенское шоссе, 27 км
Площадь дома 486 м2
Площадь участка 14 соток
Спален 4 спальни
Отделка Под ключ
Бассейн Бассейн
 
Лот 57743
Продажа дома Европа-3. Английский квартал 340 м² Ильинское шоссе - Futuro park - 57743
57743
48 000 000 руб.
$ 676 500
€ 585 492
Новорижское шоссе, 25 км
Площадь дома 169 м2
Площадь участка 2 сотки
Спален 1 спальня
Отделка Под ключ
Лот 57773
Продажа дома Европа-3. Английский квартал 340 м² Ильинское шоссе - Озерный - 57773
57773
69 000 000 руб.
$ 972 500
€ 841 645
Новорижское шоссе, 23 км
Площадь дома 330 м2
Площадь участка 15 соток
Спален 4 спальни
Отделка Под ключ
Бассейн Бассейн
 
Лот 57904
Продажа дома Европа-3. Английский квартал 340 м² Ильинское шоссе - Маленькая Италия - 57904
57904
69 500 000 руб.
$ 979 500
€ 847 744
Новорижское шоссе, 19 км
Площадь дома 252 м2
Площадь участка 4 сотки
Спален 3 спальни
Отделка Под ключ
Лот 58585
Продажа дома Европа-3. Английский квартал 340 м² Ильинское шоссе - Лобаново - 58585
58585
60 000 000 руб.
$ 845 600
€ 731 865
Лобаново
Новорижское шоссе, 20 км
Площадь дома 160 м2
Площадь участка 8 соток
Спален 3 спальни
Отделка Под ключ
Лот 59123
Продажа дома Европа-3. Английский квартал 340 м² Ильинское шоссе - Горки-2 СТ - 59123
59123
67 000 000 руб.
$ 944 300
€ 817 250
Рублево-Успенское шоссе, 19 км
Площадь дома 320 м2
Площадь участка 10 соток
Спален 5 спален
Отделка Под ключ
Лот 59128
Продажа дома Европа-3. Английский квартал 340 м² Ильинское шоссе - Лобаново - 59128
59128
70 950 000 руб.
$ 1 000 000
€ 865 442
Лобаново
Новорижское шоссе, 20 км
Площадь дома 217 м2
Площадь участка 8 соток
Спален 3 спальни
Отделка Под ключ
Избранное: 0
Ganhe Rápido nos Jogos Populares do Cassino Online 580bet Cassino bet 7k: Diversão e Grandes Vitórias Esperam por Você Aposte e Vença no Cassino leao – Jogos Fáceis e Populares Jogos Populares e Grandes Prêmios no Cassino Online luck 2 Descubra os Jogos Mais Populares no Cassino john bet e Ganhe 7755 bet: Apostas Fáceis, Grandes Oportunidades de Vitória Jogue no Cassino Online cbet e Aumente suas Chances de Ganhar Ganhe Prêmios Incríveis com Jogos Populares no Cassino bet7 Cassino pk55: Onde a Sorte Está ao Seu Lado Experimente o Cassino 8800 bet e Ganhe com Jogos Populares Ganhe Facilmente no Cassino Online doce Aposte e Vença no Cassino bet 4 Jogos Populares e Grandes Premiações na f12bet Descubra a Diversão e Vitória no Cassino bet7 Aposte nos Jogos Mais Populares do Cassino ggbet Ganhe Prêmios Rápidos no Cassino Online bet77 Jogos Fáceis e Rápidos no Cassino mrbet Jogue e Ganhe com Facilidade no Cassino bet61 Cassino tvbet: Onde a Sorte Está Ao Seu Lado Aposte nos Melhores Jogos do Cassino Online pgwin Ganhe Grande no Cassino today com Jogos Populares Cassino fuwin: Grandes Vitórias Esperam por Você Experimente os Melhores Jogos no Cassino brwin Jogue e Ganhe no Cassino bet7k – Simples e Rápido Cassino tv bet: Vença com Jogos Populares e Simples Ganhe no Cassino Online allwin com Facilidade Aposte nos Jogos Mais Famosos no Cassino stake bwin 789: Aposta Fácil, Vitória Garantida Descubra os Jogos Populares do Cassino lvbet e Vença Jogue no Cassino blaze e Ganhe Grandes Prêmios Cassino dj bet: Simples, Divertido e Lucrativo Aposte e Ganhe no Cassino umbet – Diversão Garantida Ganhe Rápido nos Jogos do Cassino Online b1bet 20bet: Jogue e Ganhe com Facilidade e Diversão Cassino bk bet: Entre Agora e Ganhe Grandes Prêmios Jogue no Cassino h2bet e Conquiste Grandes Vitórias Ganhe no Cassino 7kbet com Jogos Populares e Fáceis Aposte e Conquiste Prêmios no Cassino Online fbbet Diversão e Prêmios Fáceis no Cassino 9d bet Cassino Online 9k bet: Jogos Populares, Grandes Oportunidades Jogue no Cassino 73 bet e Aumente Suas Chances de Vitória Cassino ktobet: Onde Você Pode Ganhar Facilmente Ganhe Rápido com os Jogos Populares do Cassino 74 bet Aposte nos Melhores Jogos e Ganhe no Cassino betpix betvip: Onde a Sorte Encontra os Melhores Jogadores Jogue no Cassino batbet e Ganhe Prêmios Instantâneos Ganhe Agora nos Jogos do Cassino Online onabet Cassino f12bet: Diversão e Vitórias Esperam por Você Aposte Agora no Cassino codbet e Ganhe com Facilidade Jogos Populares do Cassino winbra para Você Ganhar Ganhe Grande com os Jogos Mais Populares no b2xbet Cassino obabet: Jogue Agora e Conquiste Grandes Vitórias Experimente a Diversão e Ganhe no Cassino Online brlwin Jogue nos Melhores Jogos e Vença no Cassino onebra Ganhe Prêmios Fáceis e Rápidos no Cassino winbrl Aposte nos Jogos Populares do Cassino omgbet e Ganhe Cassino queens: Grandes Oportunidades de Vitória Ganhe Facilmente com os Jogos do Cassino Online brdice brapub: Aposte Agora e Conquiste Grandes Vitórias Aposte e Ganhe com Facilidade no Cassino Online flames Ganhe Dinheiro Fácil nos Jogos do Cassino betano Cassino aajogo: Jogos Populares e Grandes Prêmios Jogue e Vença no Cassino iribet – Onde a Sorte Está Aposte no Cassino pixbet e Ganhe Prêmios Fantásticos Ganhe Grande nos Jogos Populares do Cassino betsul Cassino Online fezbet: Onde Você Sempre Pode Ganhar Aposte nos Melhores Jogos e Ganhe no Cassino curso beta betway: Jogue e Ganhe Agora com Facilidade Experimente o Cassino Online bkbet e Ganhe Rápido Ganhe Dinheiro Jogando nos Jogos Populares do Cassino peixe beta Jogue no Cassino bet365 e Ganhe de Forma Simples e Rápida Ganhe No Cassino pixbet: Jogos Populares, Grandes Prêmios Aposte Agora e Conquiste Vitórias no Cassino 4 play bet Ganhe no Cassino Online 365bet: Diversão e Vitória Cassino brxbet: Aposte com Facilidade e Ganhe Prêmios Aposte no Cassino 939 bet e Vença Agora Mesmo Cassino seubet: Ganhe Jogando os Melhores Jogos Jogue no Cassino Online cnc bet e Aumente Suas Chances Ganhe com Facilidade nos Jogos Populares do gbg bet Jogue e Vença no Cassino 522bet – O Melhor para Você Cassino Online brl bet: Apostas Fáceis, Grandes Vitórias Ganhe com Facilidade no Cassino Online pagbet Aposte no Cassino jonbet e Experimente a Diversão jqk bet: Jogue e Ganhe com Prêmios Instantâneos Ganhe Dinheiro Fácil nos Jogos do Cassino 166bet Cassino Online abc bet: Onde os Jogos Populares Levam à Vitória Aposte e Ganhe Agora nos Jogos do Cassino bggbet Jogos Populares e Grandes Oportunidades de Vitória na obabet Cassino 136bet: Onde Você Pode Ganhar Rápido e Fácil Ganhe Agora nos Jogos Populares do Cassino mmabet Aposte Agora no Cassino win bet e Conquiste Grandes Vitórias Jogue nos Jogos Mais Populares e Ganhe no Cassino ir6 bet Cassino 667bet: Jogue e Conquiste Vitórias Rápidas Ganhe no Cassino Online qqq bet com Jogos Simples e Populares 193 bet: Apostas Fáceis, Grandes Chances de Ganhar Ganhe Prêmios Rápidos e Simples no Cassino dobrowin Aposte nos Melhores Jogos e Vença no Cassino betleao Jogue e Ganhe no Cassino moverbet com Facilidade Ganhe Agora no Cassino Online winzada 777 com Jogos Populares supremo: Apostas Fáceis e Grandes Vitórias Aposte nos Jogos Populares do Cassino casadeapostas e Vença Cassino dobrowin: Grandes Premiações com Jogos Fáceis Ganhe no Cassino betleao com Jogos Populares e Simples Jogue e Vença Agora no Cassino moverbet wazamba: Aposte e Ganhe Grande nos Jogos Populares Cassino Online fezbet: Simples, Divertido e Lucrativo Ganhe Agora nos Jogos Populares do Cassino betsson Aposte e Vença no Cassino lvbet – Jogue e Ganhe dobrowin: Onde Você Joga e Ganha Com Facilidade Ganhe Rápido e Fácil no Cassino Online betsul Ganhe Fácil no Cassino Online pixbet Aposte e Vença com Jogos Populares no bwin Jogos Fáceis, Grandes Vitórias no Cassino betobet dobrowin: Apostas Simples, Grandes Premiações Ganhe Agora nos Jogos Populares do Cassino bet7 Aposte nos Melhores Jogos e Ganhe no Cassino betcris Jogue e Conquiste Grandes Prêmios no blaze Ganhe Rápido com Jogos Populares no Cassino 888 Cassino betano: O Melhor Lugar para Apostar e Ganhar Jogue Agora e Ganhe no Cassino Online stake stake: Onde a Sorte Encontra os Melhores Jogadores Ganhe Facilmente com os Jogos do Cassino esportesdasorte Aposte e Vença no Cassino Online betmotion Jogue nos Jogos Populares e Ganhe no rivalry Aposte no novibet e Ganhe Grandes Prêmios Cassino pinnacle: Grandes Vitórias com Jogos Populares Ganhe Agora com os Jogos do Cassino cbet Aposte e Conquiste Vitórias no dobrowin betleao: Onde Grandes Vitórias São Fáceis de Alcançar Ganhe Prêmios Rápidos no Cassino moverbet Jogos Populares e Grandes Oportunidades no Cassino gogowin jogos win: Vença com Jogos Populares e Rápidos Aposte no Cassino campobet e Ganhe Grande Ganhe Facilmente com os Jogos do Cassino mesk bet Cassino infinity bet: Onde Jogadores Conquistam Prêmios Jogue Agora no Cassino betfury e Ganhe Facilmente Aposte com Facilidade e Ganhe no doce Ganhe Jogando os Melhores Jogos no bet7k Jogue e Vença no Cassino Online jogowin lobo888: Aposte Agora e Ganhe Grandes Vitórias Ganhe Agora no Cassino iribet com Facilidade Jogue e Conquiste Prêmios no Cassino Online leao dobrowin: Onde a Sorte Está ao Seu Lado Aposte e Ganhe Grandes Prêmios no allwin Ganhe Grandes Prêmios Jogando no aajogo Jogos Populares e Grandes Oportunidades no pgwin Ganhe Fácil com os Jogos Populares do Cassino greenbets Aposte no brapub e Vença com Jogos Populares Cassino moverbet: Aposte Agora e Ganhe Facilmente Ganhe Agora com os Jogos Populares do onebra Jogue e Vença Agora no Cassino flames Ganhe Rápido com os Jogos do Cassino brdice brwin: Jogos Populares e Grandes Vitórias Aposte nos Jogos Populares e Ganhe no poplottery queens: Grandes Prêmios Esperam por Você Jogue Agora no winbrl e Ganhe Fácil Aposte e Ganhe Prêmios Rápidos no Cassino omgbet Ganhe no winbra com Jogos Populares e Simples Aposte e Ganhe no Cassino goinbet Agora Jogue Agora e Ganhe no codbet com Facilidade betleao: Onde a Sorte Se Encontra com Você Ganhe Rápido e Fácil no Cassino fuwin allwin568: Aposte Agora e Ganhe com Facilidade Ganhe Grande no Cassino wingdus Aposte no juntosbet e Conquiste Grandes Vitórias today: Onde Jogadores Ganham com Facilidade Jogue no talon777 e Ganhe com Simplicidade Ganhe Agora no Cassino Online brlwin com Facilidade Aposte e Vença no fazobetai – O Cassino dos Vencedores pinup bet: Ganhe Rápido com os Melhores Jogos Aposte nos Melhores Jogos no bet sport e Ganhe Ganhe no bet esporte com Jogos Fáceis e Populares mrbet: O Cassino Online Onde Você Ganha Fácil Ganhe no Cassino premier bet com Jogos Populares e Fáceis Jogue e Vença no Cassino apostebet Agora Aposte e Ganhe no spicy bet com Jogos Fáceis Ganhe no prosport bet com Jogos Simples e Populares Aposte e Conquiste Grandes Vitórias no bet nacional Jogue Agora no luck e Ganhe Prêmios Rápidos jogodeouro: Apostas Fáceis e Grandes Oportunidades de Vitória Ganhe no heads bet com Facilidade nos Jogos Populares Aposte no marjack bet e Ganhe Agora com Facilidade Jogue no apostaganha e Ganhe Prêmios Instantâneos gbg bet: Onde Você Sempre Ganha Ganhe Fácil no Cassino esoccer bet com Jogos Populares Aposte e Ganhe Grande no Cassino Online esport bet Ganhe Agora com Jogos Populares no realbet Jogue no aposte e ganhe e Conquiste Vitórias Rápidas aviator aposta: Apostas Fáceis, Prêmios Incríveis Ganhe no bet vitoria com Facilidade e Diversão Aposte e Ganhe no imperador bet – Apostas Populares Jogue no realsbet e Ganhe Prêmios Rápidos e Fáceis Ganhe Agora com os Jogos do Cassino bet favorita Cassino esportenet: Grandes Vitórias Esperam por Você Aposte no flames bet e Conquiste Grandes Prêmios Ganhe Fácil no pague bet com Jogos Populares Jogue Agora no betsury e Ganhe Grande doce888: Onde Você Joga e Ganha com Facilidade Ganhe Grande no Cassino obabet Agora Jogue no winzada e Ganhe Prêmios Fantásticos Aposte e Ganhe no Cassino globalbet – O Melhor Lugar bet77: Onde Jogos Populares Levam à Vitória Ganhe Rápido com os Jogos do Cassino Online lottoland Aposte e Vença Agora no 7gamesbet Jogue no dicasbet e Conquiste Vitórias Fáceis Ganhe Agora com os Jogos do Cassino esportivabet Aposte no tvbet e Ganhe Rápido sportbet: Apostas Fáceis com Grandes Resultados Ganhe Grande no Cassino misterjackbet com Jogos Populares Jogue no Cassino esportebet e Ganhe de Forma Simples e Rápida Ganhe Rápido no Cassino Online nacionalbet Aposte e Vença no simplesbet com Jogos Populares betestrela: Cassino Online Fácil de Jogar e Ganhar Jogos Populares, Grandes Premiações no batbet Ganhe Fácil no Pk55 – O Cassino Online dos Vencedores Aposte e Conquiste Vitórias no Cassino Bet61 Upsports Bet: Diversão e Grandes Ganhos com Jogos Populares Ganhe Agora no roleta online com Jogos Simples e Populares Jogue no roleta e Vença com Facilidade Cassino Online poker online: Onde Você Pode Ganhar Agora poker: Onde Jogadores Conquistam Grandes Vitórias Ganhe Fácil no Cassino Online blackjack online com Jogos Populares Aposte no bingo e Ganhe Rápido com Jogos Famosos Ceará: Apostas Rápidas, Vitórias Imediatas Ganhe Prêmios Fantásticos com Jogos Populares no Paysandu Juventude: O Melhor Cassino Online para Ganhar Jogue e Vença no Cassino Online Bahia com Facilidade Sport: Grandes Oportunidades de Ganhar nos Jogos Populares Aposte no Cassino Cuiabá e Conquiste Grandes Prêmios Ganhe Rápido no Coritiba – Apostas Fáceis, Grandes Prêmios Jogos Fáceis e Grandes Vitórias no Criciúma Aposte no Vitória e Ganhe Com Facilidade nos Jogos Populares Fortaleza: Onde a Sorte Está ao Seu Lado Ganhe no Corinthians – Simples, Rápido e Divertido Jogue Agora e Vença no Cassino São Paulo Ganhe Agora no Cassino Online Vasco com Jogos Populares Aposte e Ganhe no Cassino Online Grêmio Fluminense: Onde Você Joga e Ganha com Facilidade Ganhe no Cassino Cruzeiro com Jogos Populares e Fáceis Botafogo: Ganhe Rápido com Jogos Populares Cassino Flamengo: Vença Agora com Facilidade Ganhe Agora com Jogos Populares no Cassino bingo slots slots slots: Cassino Online Rápido e Simples de Ganhar Aposte nos Jogos Populares e Ganhe no Cassino hacker do slot pg slot demo: O Cassino Online Mais Fácil de Ganhar Jogue e Vença Agora no slot win – Cassino Online Fácil pg slot soft: Ganhe Grandes Prêmios com Jogos Fáceis Cassino arne slot: Onde Você Pode Ganhar com Facilidade Aposte Agora e Vença no Cassino Online riqueza slots slots 777: Jogos Populares, Grandes Vitórias Ganhe Agora no pg slot com Facilidade nos Jogos Populares Jogue e Ganhe no 777 slot game com Apostas Simples slot pg soft: Aposte Agora e Ganhe Rápido Aposte e Vença nos Jogos Populares do Cassino hacker slot Ganhe no 777 slots – Diversão e Grandes Prêmios Jogue e Conquiste Vitórias no slot-pg-soft com Facilidade Ganhe Prêmios Fáceis no Cassino Online fortune ox demo grátis demo fortune ox: Apostas Fáceis e Grandes Oportunidades Jogue no fortune mouse demo e Ganhe com Facilidade nos Jogos Populares fortune ox demo: Onde a Sorte Está ao Seu Lado para Ganhar Ganhe Grande no Cassino jogo fortune tiger com Jogos Populares Cassino Online fortune tiger grátis: Ganhe Fácil e Rápido Jogue Agora e Ganhe Prêmios Rápidos no fortune tiger baixar fortune tiger demo grátis: O Cassino Mais Fácil para Ganhar Aposte e Ganhe Rápido com Jogos Populares no fortune tiger demo Ganhe Fácil no fortune tiger 777 com Jogos Simples e Rápidos!