Продажа дома в коттеджном поселке Новорижский (Покровское) по Новорижскому шоссе, лот № 59423

Коттеджный поселок Новорижский (Покровское) О поселке
Новорижское шоссе, 25 км, Покровское
Площадь дома 250 м2
Площадь участка 6 соток
Спален 5 спален
Отделка Под ключ
Цена от собственника
Стоимость продажи 79`000`000 руб.$ 1`077`100€ 919`656
Хочу посмотреть этот дом
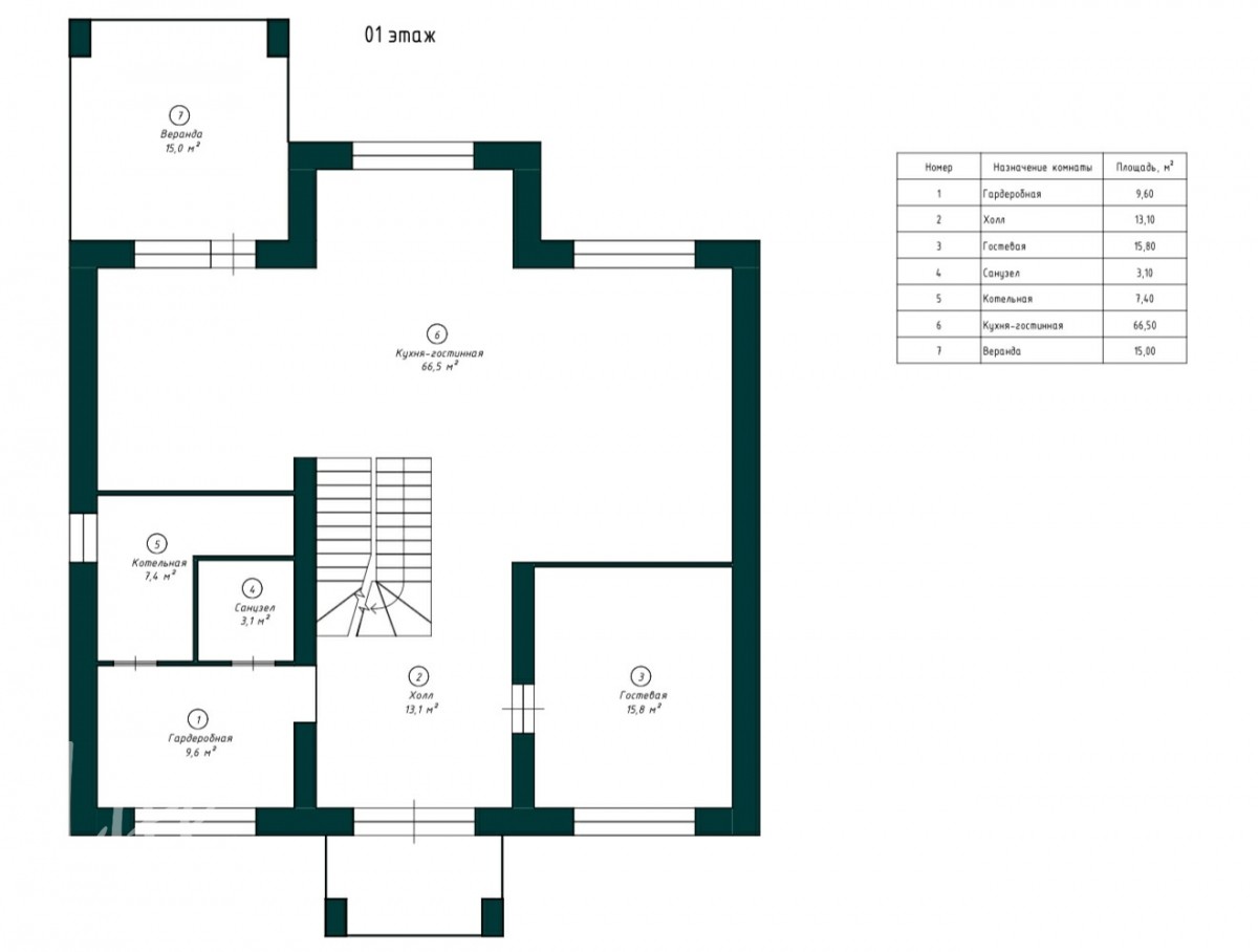
ДОМ
Площадь дома: 250 кв.м
Этажность: 2
Уровней: 2
Фундамент: Монолит
Стены: Кирпич
Перекрытия: Железобетонные
Кровля: Плоская кровля
Отделка: Под ключ
Мебель: Полностью
Архитектура дома выполнена в современном стиле с акцентом на выразительность и свободу планировки. Фасад облицован дагестанским камнем, установлены
алюминиевые окна, уложена премиальная брусчатка Steingot. Забороснащён электроприводом.
Дом находится в состоянии под ключ: полы — керамогранит, стены — под покраску, потолки — полностью завершены. Все санузлы оборудованы качественной
сантехникой. В комплект входят шторы, люстры, диван. Кухня подготовлена по дизайн-проекту.
ПЛАНИРОВКА
1 этаж: холл, гардеробная, гостиная, кухня с выходом на веранду, комната гостевая, с-у, постирочная, котельная.
2 этаж: мастер- спальня со своим су у и гардеробной, три детские спальни с гардеробными, су.
УЧАСТОК
Площадь участка: 6.20 соток
Ландшафт: Газон
КОММУНИКАЦИИ
Газ: Магистральный
Электричество: 30 кВт
Водоснабжение: Центральное
Канализация: Центральная

На карте

Похожие предложения

Лот 13209
Продажа дома Новорижский (Покровское) 250 м² Новорижское шоссе - Княжье Озеро - 13209
13209
90 000 000 руб.
$ 1 227 100
€ 1 047 709
Новорижское шоссе, 23 км
Площадь дома 310 м2
Площадь участка 20 соток
Спален 3 спальни
Отделка Под ключ
Лот 17449
Продажа дома Новорижский (Покровское) 250 м² Новорижское шоссе - Крона - 17449
17449
65 000 000 руб.
$ 886 200
€ 756 679
Новорижское шоссе, 28 км
Площадь дома 284 м2
Площадь участка 10 соток
Спален 3 спальни
Отделка Под ключ
Лот 17454
Продажа дома Новорижский (Покровское) 250 м² Новорижское шоссе - Крона - 17454
17454
85 000 000 руб.
$ 1 158 900
€ 989 503
Новорижское шоссе, 28 км
Площадь дома 538 м2
Площадь участка 16 соток
Спален 6 спален
Отделка Под ключ
Лот 32852
Продажа дома Новорижский (Покровское) 250 м² Новорижское шоссе - Новорижский (Покровское) - 32852
32852
70 000 000 руб.
$ 954 400
€ 814 885
Новорижское шоссе, 25 км
Площадь дома 375 м2
Площадь участка 12 соток
Спален 5 спален
Отделка Под ключ
Лот 32855
Продажа дома Новорижский (Покровское) 250 м² Новорижское шоссе - Новорижский (Покровское) - 32855
32855
69 900 000 руб.
$ 953 000
€ 813 721
Новорижское шоссе, 25 км
Площадь дома 310 м2
Площадь участка 12 соток
Спален 4 спальни
Отделка Под ключ
Лот 33700
Продажа дома Новорижский (Покровское) 250 м² Новорижское шоссе - Княжье Озеро - 33700
33700
90 000 000 руб.
$ 1 227 100
€ 1 047 709
Новорижское шоссе, 23 км
Площадь дома 250 м2
Площадь участка 10 соток
Спален 3 спальни
Отделка Под ключ
Лот 41145
Продажа дома Новорижский (Покровское) 250 м² Новорижское шоссе - Европа-2. Итальянский квартал - 41145
41145
80 000 000 руб.
$ 1 090 700
€ 931 297
Ильинское шоссе, 22 км
Площадь дома 243 м2
Площадь участка 10 соток
Спален 4 спальни
Отделка Под ключ
Лот 49953
Продажа дома Новорижский (Покровское) 250 м² Новорижское шоссе - Futuro park - 49953
49953
89 900 000 руб.
$ 1 225 700
€ 1 046 545
Новорижское шоссе, 25 км
Площадь дома 238 м2
Площадь участка 2 сотки
Спален 4 спальни
Отделка Под ключ
Лот 55726
Продажа дома Новорижский (Покровское) 250 м² Новорижское шоссе - Белая Гора - 55726
55726
95 000 000 руб.
$ 1 295 300
€ 1 105 915
Новорижское шоссе, 28 км
Площадь дома 500 м2
Площадь участка 20 соток
Спален 5 спален
Отделка Под ключ
Лот 56140
Продажа дома Новорижский (Покровское) 250 м² Новорижское шоссе - Futuro park - 56140
56140
79 000 000 руб.
$ 1 077 100
€ 919 656
Новорижское шоссе, 25 км
Площадь дома 169 м2
Площадь участка 2 сотки
Спален 3 спальни
Отделка Под ключ
Лот 56795
Продажа дома Новорижский (Покровское) 250 м² Новорижское шоссе - Николина Поляна - 56795
56795
90 000 000 руб.
$ 1 227 100
€ 1 047 709
Ильинское шоссе, 22 км
Площадь дома 341 м2
Площадь участка 14 соток
Спален 5 спален
Отделка Под ключ
Лот 57747
Продажа дома Новорижский (Покровское) 250 м² Новорижское шоссе - Новорижский (Покровское) - 57747
57747
87 000 000 руб.
$ 1 186 200
€ 1 012 786
Новорижское шоссе, 25 км
Площадь дома 460 м2
Площадь участка 12 соток
Спален 5 спален
Отделка Под ключ
Лот 57766
Продажа дома Новорижский (Покровское) 250 м² Новорижское шоссе - Новорижский (Покровское) - 57766
57766
90 000 000 руб.
$ 1 227 100
€ 1 047 709
Новорижское шоссе, 25 км
Площадь дома 400 м2
Площадь участка 12 соток
Спален 4 спальни
Отделка Под ключ
Лот 57773
Продажа дома Новорижский (Покровское) 250 м² Новорижское шоссе - Озерный - 57773
57773
69 000 000 руб.
$ 940 700
€ 803 244
Новорижское шоссе, 23 км
Площадь дома 330 м2
Площадь участка 15 соток
Спален 4 спальни
Отделка Под ключ
Бассейн Бассейн
 
Лот 57883
Продажа дома Новорижский (Покровское) 250 м² Новорижское шоссе - Борки - 57883
57883
65 000 000 руб.
$ 886 200
€ 756 679
Борки
Новорижское шоссе, 30 км
Площадь дома 490 м2
Площадь участка 23 сотки
Спален 7 спален
Отделка Под ключ
Лот 58239
Продажа дома Новорижский (Покровское) 250 м² Новорижское шоссе - Новорижский (Покровское) - 58239
58239
88 000 000 руб.
$ 1 199 800
€ 1 024 427
Новорижское шоссе, 25 км
Площадь дома 360 м2
Площадь участка 11 соток
Спален 5 спален
Отделка Под ключ
Избранное: 0
Ganhe Rápido nos Jogos Populares do Cassino Online 580bet Cassino bet 7k: Diversão e Grandes Vitórias Esperam por Você Aposte e Vença no Cassino leao – Jogos Fáceis e Populares Jogos Populares e Grandes Prêmios no Cassino Online luck 2 Descubra os Jogos Mais Populares no Cassino john bet e Ganhe 7755 bet: Apostas Fáceis, Grandes Oportunidades de Vitória Jogue no Cassino Online cbet e Aumente suas Chances de Ganhar Ganhe Prêmios Incríveis com Jogos Populares no Cassino bet7 Cassino pk55: Onde a Sorte Está ao Seu Lado Experimente o Cassino 8800 bet e Ganhe com Jogos Populares Ganhe Facilmente no Cassino Online doce Aposte e Vença no Cassino bet 4 Jogos Populares e Grandes Premiações na f12bet Descubra a Diversão e Vitória no Cassino bet7 Aposte nos Jogos Mais Populares do Cassino ggbet Ganhe Prêmios Rápidos no Cassino Online bet77 Jogos Fáceis e Rápidos no Cassino mrbet Jogue e Ganhe com Facilidade no Cassino bet61 Cassino tvbet: Onde a Sorte Está Ao Seu Lado Aposte nos Melhores Jogos do Cassino Online pgwin Ganhe Grande no Cassino today com Jogos Populares Cassino fuwin: Grandes Vitórias Esperam por Você Experimente os Melhores Jogos no Cassino brwin Jogue e Ganhe no Cassino bet7k – Simples e Rápido Cassino tv bet: Vença com Jogos Populares e Simples Ganhe no Cassino Online allwin com Facilidade Aposte nos Jogos Mais Famosos no Cassino stake bwin 789: Aposta Fácil, Vitória Garantida Descubra os Jogos Populares do Cassino lvbet e Vença Jogue no Cassino blaze e Ganhe Grandes Prêmios Cassino dj bet: Simples, Divertido e Lucrativo Aposte e Ganhe no Cassino umbet – Diversão Garantida Ganhe Rápido nos Jogos do Cassino Online b1bet 20bet: Jogue e Ganhe com Facilidade e Diversão Cassino bk bet: Entre Agora e Ganhe Grandes Prêmios Jogue no Cassino h2bet e Conquiste Grandes Vitórias Ganhe no Cassino 7kbet com Jogos Populares e Fáceis Aposte e Conquiste Prêmios no Cassino Online fbbet Diversão e Prêmios Fáceis no Cassino 9d bet Cassino Online 9k bet: Jogos Populares, Grandes Oportunidades Jogue no Cassino 73 bet e Aumente Suas Chances de Vitória Cassino ktobet: Onde Você Pode Ganhar Facilmente Ganhe Rápido com os Jogos Populares do Cassino 74 bet Aposte nos Melhores Jogos e Ganhe no Cassino betpix betvip: Onde a Sorte Encontra os Melhores Jogadores Jogue no Cassino batbet e Ganhe Prêmios Instantâneos Ganhe Agora nos Jogos do Cassino Online onabet Cassino f12bet: Diversão e Vitórias Esperam por Você Aposte Agora no Cassino codbet e Ganhe com Facilidade Jogos Populares do Cassino winbra para Você Ganhar Ganhe Grande com os Jogos Mais Populares no b2xbet Cassino obabet: Jogue Agora e Conquiste Grandes Vitórias Experimente a Diversão e Ganhe no Cassino Online brlwin Jogue nos Melhores Jogos e Vença no Cassino onebra Ganhe Prêmios Fáceis e Rápidos no Cassino winbrl Aposte nos Jogos Populares do Cassino omgbet e Ganhe Cassino queens: Grandes Oportunidades de Vitória Ganhe Facilmente com os Jogos do Cassino Online brdice brapub: Aposte Agora e Conquiste Grandes Vitórias Aposte e Ganhe com Facilidade no Cassino Online flames Ganhe Dinheiro Fácil nos Jogos do Cassino betano Cassino aajogo: Jogos Populares e Grandes Prêmios Jogue e Vença no Cassino iribet – Onde a Sorte Está Aposte no Cassino pixbet e Ganhe Prêmios Fantásticos Ganhe Grande nos Jogos Populares do Cassino betsul Cassino Online fezbet: Onde Você Sempre Pode Ganhar Aposte nos Melhores Jogos e Ganhe no Cassino curso beta betway: Jogue e Ganhe Agora com Facilidade Experimente o Cassino Online bkbet e Ganhe Rápido Ganhe Dinheiro Jogando nos Jogos Populares do Cassino peixe beta Jogue no Cassino bet365 e Ganhe de Forma Simples e Rápida Ganhe No Cassino pixbet: Jogos Populares, Grandes Prêmios Aposte Agora e Conquiste Vitórias no Cassino 4 play bet Ganhe no Cassino Online 365bet: Diversão e Vitória Cassino brxbet: Aposte com Facilidade e Ganhe Prêmios Aposte no Cassino 939 bet e Vença Agora Mesmo Cassino seubet: Ganhe Jogando os Melhores Jogos Jogue no Cassino Online cnc bet e Aumente Suas Chances Ganhe com Facilidade nos Jogos Populares do gbg bet Jogue e Vença no Cassino 522bet – O Melhor para Você Cassino Online brl bet: Apostas Fáceis, Grandes Vitórias Ganhe com Facilidade no Cassino Online pagbet Aposte no Cassino jonbet e Experimente a Diversão jqk bet: Jogue e Ganhe com Prêmios Instantâneos Ganhe Dinheiro Fácil nos Jogos do Cassino 166bet Cassino Online abc bet: Onde os Jogos Populares Levam à Vitória Aposte e Ganhe Agora nos Jogos do Cassino bggbet Jogos Populares e Grandes Oportunidades de Vitória na obabet Cassino 136bet: Onde Você Pode Ganhar Rápido e Fácil Ganhe Agora nos Jogos Populares do Cassino mmabet Aposte Agora no Cassino win bet e Conquiste Grandes Vitórias Jogue nos Jogos Mais Populares e Ganhe no Cassino ir6 bet Cassino 667bet: Jogue e Conquiste Vitórias Rápidas Ganhe no Cassino Online qqq bet com Jogos Simples e Populares 193 bet: Apostas Fáceis, Grandes Chances de Ganhar Ganhe Prêmios Rápidos e Simples no Cassino dobrowin Aposte nos Melhores Jogos e Vença no Cassino betleao Jogue e Ganhe no Cassino moverbet com Facilidade Ganhe Agora no Cassino Online winzada 777 com Jogos Populares supremo: Apostas Fáceis e Grandes Vitórias Aposte nos Jogos Populares do Cassino casadeapostas e Vença Cassino dobrowin: Grandes Premiações com Jogos Fáceis Ganhe no Cassino betleao com Jogos Populares e Simples Jogue e Vença Agora no Cassino moverbet wazamba: Aposte e Ganhe Grande nos Jogos Populares Cassino Online fezbet: Simples, Divertido e Lucrativo Ganhe Agora nos Jogos Populares do Cassino betsson Aposte e Vença no Cassino lvbet – Jogue e Ganhe dobrowin: Onde Você Joga e Ganha Com Facilidade Ganhe Rápido e Fácil no Cassino Online betsul Ganhe Fácil no Cassino Online pixbet Aposte e Vença com Jogos Populares no bwin Jogos Fáceis, Grandes Vitórias no Cassino betobet dobrowin: Apostas Simples, Grandes Premiações Ganhe Agora nos Jogos Populares do Cassino bet7 Aposte nos Melhores Jogos e Ganhe no Cassino betcris Jogue e Conquiste Grandes Prêmios no blaze Ganhe Rápido com Jogos Populares no Cassino 888 Cassino betano: O Melhor Lugar para Apostar e Ganhar Jogue Agora e Ganhe no Cassino Online stake stake: Onde a Sorte Encontra os Melhores Jogadores Ganhe Facilmente com os Jogos do Cassino esportesdasorte Aposte e Vença no Cassino Online betmotion Jogue nos Jogos Populares e Ganhe no rivalry Aposte no novibet e Ganhe Grandes Prêmios Cassino pinnacle: Grandes Vitórias com Jogos Populares Ganhe Agora com os Jogos do Cassino cbet Aposte e Conquiste Vitórias no dobrowin betleao: Onde Grandes Vitórias São Fáceis de Alcançar Ganhe Prêmios Rápidos no Cassino moverbet Jogos Populares e Grandes Oportunidades no Cassino gogowin jogos win: Vença com Jogos Populares e Rápidos Aposte no Cassino campobet e Ganhe Grande Ganhe Facilmente com os Jogos do Cassino mesk bet Cassino infinity bet: Onde Jogadores Conquistam Prêmios Jogue Agora no Cassino betfury e Ganhe Facilmente Aposte com Facilidade e Ganhe no doce Ganhe Jogando os Melhores Jogos no bet7k Jogue e Vença no Cassino Online jogowin lobo888: Aposte Agora e Ganhe Grandes Vitórias Ganhe Agora no Cassino iribet com Facilidade Jogue e Conquiste Prêmios no Cassino Online leao dobrowin: Onde a Sorte Está ao Seu Lado Aposte e Ganhe Grandes Prêmios no allwin Ganhe Grandes Prêmios Jogando no aajogo Jogos Populares e Grandes Oportunidades no pgwin Ganhe Fácil com os Jogos Populares do Cassino greenbets Aposte no brapub e Vença com Jogos Populares Cassino moverbet: Aposte Agora e Ganhe Facilmente Ganhe Agora com os Jogos Populares do onebra Jogue e Vença Agora no Cassino flames Ganhe Rápido com os Jogos do Cassino brdice brwin: Jogos Populares e Grandes Vitórias Aposte nos Jogos Populares e Ganhe no poplottery queens: Grandes Prêmios Esperam por Você Jogue Agora no winbrl e Ganhe Fácil Aposte e Ganhe Prêmios Rápidos no Cassino omgbet Ganhe no winbra com Jogos Populares e Simples Aposte e Ganhe no Cassino goinbet Agora Jogue Agora e Ganhe no codbet com Facilidade betleao: Onde a Sorte Se Encontra com Você Ganhe Rápido e Fácil no Cassino fuwin allwin568: Aposte Agora e Ganhe com Facilidade Ganhe Grande no Cassino wingdus Aposte no juntosbet e Conquiste Grandes Vitórias today: Onde Jogadores Ganham com Facilidade Jogue no talon777 e Ganhe com Simplicidade Ganhe Agora no Cassino Online brlwin com Facilidade Aposte e Vença no fazobetai – O Cassino dos Vencedores pinup bet: Ganhe Rápido com os Melhores Jogos Aposte nos Melhores Jogos no bet sport e Ganhe Ganhe no bet esporte com Jogos Fáceis e Populares mrbet: O Cassino Online Onde Você Ganha Fácil Ganhe no Cassino premier bet com Jogos Populares e Fáceis Jogue e Vença no Cassino apostebet Agora Aposte e Ganhe no spicy bet com Jogos Fáceis Ganhe no prosport bet com Jogos Simples e Populares Aposte e Conquiste Grandes Vitórias no bet nacional Jogue Agora no luck e Ganhe Prêmios Rápidos jogodeouro: Apostas Fáceis e Grandes Oportunidades de Vitória Ganhe no heads bet com Facilidade nos Jogos Populares Aposte no marjack bet e Ganhe Agora com Facilidade Jogue no apostaganha e Ganhe Prêmios Instantâneos gbg bet: Onde Você Sempre Ganha Ganhe Fácil no Cassino esoccer bet com Jogos Populares Aposte e Ganhe Grande no Cassino Online esport bet Ganhe Agora com Jogos Populares no realbet Jogue no aposte e ganhe e Conquiste Vitórias Rápidas aviator aposta: Apostas Fáceis, Prêmios Incríveis Ganhe no bet vitoria com Facilidade e Diversão Aposte e Ganhe no imperador bet – Apostas Populares Jogue no realsbet e Ganhe Prêmios Rápidos e Fáceis Ganhe Agora com os Jogos do Cassino bet favorita Cassino esportenet: Grandes Vitórias Esperam por Você Aposte no flames bet e Conquiste Grandes Prêmios Ganhe Fácil no pague bet com Jogos Populares Jogue Agora no betsury e Ganhe Grande doce888: Onde Você Joga e Ganha com Facilidade Ganhe Grande no Cassino obabet Agora Jogue no winzada e Ganhe Prêmios Fantásticos Aposte e Ganhe no Cassino globalbet – O Melhor Lugar bet77: Onde Jogos Populares Levam à Vitória Ganhe Rápido com os Jogos do Cassino Online lottoland Aposte e Vença Agora no 7gamesbet Jogue no dicasbet e Conquiste Vitórias Fáceis Ganhe Agora com os Jogos do Cassino esportivabet Aposte no tvbet e Ganhe Rápido sportbet: Apostas Fáceis com Grandes Resultados Ganhe Grande no Cassino misterjackbet com Jogos Populares Jogue no Cassino esportebet e Ganhe de Forma Simples e Rápida Ganhe Rápido no Cassino Online nacionalbet Aposte e Vença no simplesbet com Jogos Populares betestrela: Cassino Online Fácil de Jogar e Ganhar Jogos Populares, Grandes Premiações no batbet Ganhe Fácil no Pk55 – O Cassino Online dos Vencedores Aposte e Conquiste Vitórias no Cassino Bet61 Upsports Bet: Diversão e Grandes Ganhos com Jogos Populares Ganhe Agora no roleta online com Jogos Simples e Populares Jogue no roleta e Vença com Facilidade Cassino Online poker online: Onde Você Pode Ganhar Agora poker: Onde Jogadores Conquistam Grandes Vitórias Ganhe Fácil no Cassino Online blackjack online com Jogos Populares Aposte no bingo e Ganhe Rápido com Jogos Famosos Ceará: Apostas Rápidas, Vitórias Imediatas Ganhe Prêmios Fantásticos com Jogos Populares no Paysandu Juventude: O Melhor Cassino Online para Ganhar Jogue e Vença no Cassino Online Bahia com Facilidade Sport: Grandes Oportunidades de Ganhar nos Jogos Populares Aposte no Cassino Cuiabá e Conquiste Grandes Prêmios Ganhe Rápido no Coritiba – Apostas Fáceis, Grandes Prêmios Jogos Fáceis e Grandes Vitórias no Criciúma Aposte no Vitória e Ganhe Com Facilidade nos Jogos Populares Fortaleza: Onde a Sorte Está ao Seu Lado Ganhe no Corinthians – Simples, Rápido e Divertido Jogue Agora e Vença no Cassino São Paulo Ganhe Agora no Cassino Online Vasco com Jogos Populares Aposte e Ganhe no Cassino Online Grêmio Fluminense: Onde Você Joga e Ganha com Facilidade Ganhe no Cassino Cruzeiro com Jogos Populares e Fáceis Botafogo: Ganhe Rápido com Jogos Populares Cassino Flamengo: Vença Agora com Facilidade Ganhe Agora com Jogos Populares no Cassino bingo slots slots slots: Cassino Online Rápido e Simples de Ganhar Aposte nos Jogos Populares e Ganhe no Cassino hacker do slot pg slot demo: O Cassino Online Mais Fácil de Ganhar Jogue e Vença Agora no slot win – Cassino Online Fácil pg slot soft: Ganhe Grandes Prêmios com Jogos Fáceis Cassino arne slot: Onde Você Pode Ganhar com Facilidade Aposte Agora e Vença no Cassino Online riqueza slots slots 777: Jogos Populares, Grandes Vitórias Ganhe Agora no pg slot com Facilidade nos Jogos Populares Jogue e Ganhe no 777 slot game com Apostas Simples slot pg soft: Aposte Agora e Ganhe Rápido Aposte e Vença nos Jogos Populares do Cassino hacker slot Ganhe no 777 slots – Diversão e Grandes Prêmios Jogue e Conquiste Vitórias no slot-pg-soft com Facilidade Ganhe Prêmios Fáceis no Cassino Online fortune ox demo grátis demo fortune ox: Apostas Fáceis e Grandes Oportunidades Jogue no fortune mouse demo e Ganhe com Facilidade nos Jogos Populares fortune ox demo: Onde a Sorte Está ao Seu Lado para Ganhar Ganhe Grande no Cassino jogo fortune tiger com Jogos Populares Cassino Online fortune tiger grátis: Ganhe Fácil e Rápido Jogue Agora e Ganhe Prêmios Rápidos no fortune tiger baixar fortune tiger demo grátis: O Cassino Mais Fácil para Ganhar Aposte e Ganhe Rápido com Jogos Populares no fortune tiger demo Ganhe Fácil no fortune tiger 777 com Jogos Simples e Rápidos!